
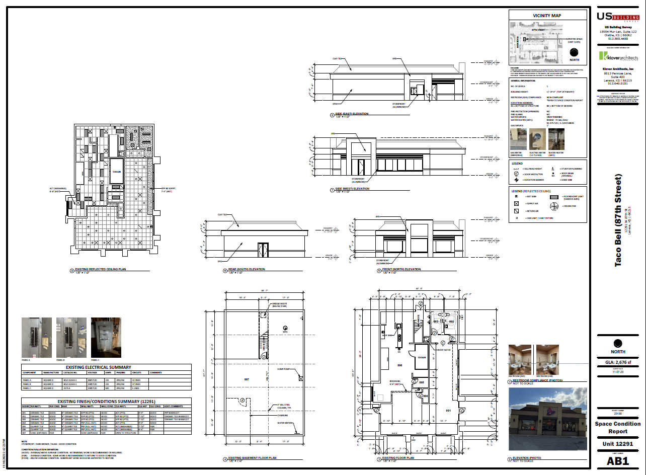
Taco Bell (87th Street)
12291 W 87th St | Lenexa, KS 66215
Taco Bell (87th Street)
12291 W 87th St | Lenexa, KS 66215
General Information
Utility Information
Electrical
Plumbing
US Building Survey, Inc. (Kansas City Office)
15954 S Mur-Len Road, Suite 122
Olathe, Kansas | 66062
T: 913.568.4488
E: admin@usbldgsurvey.com